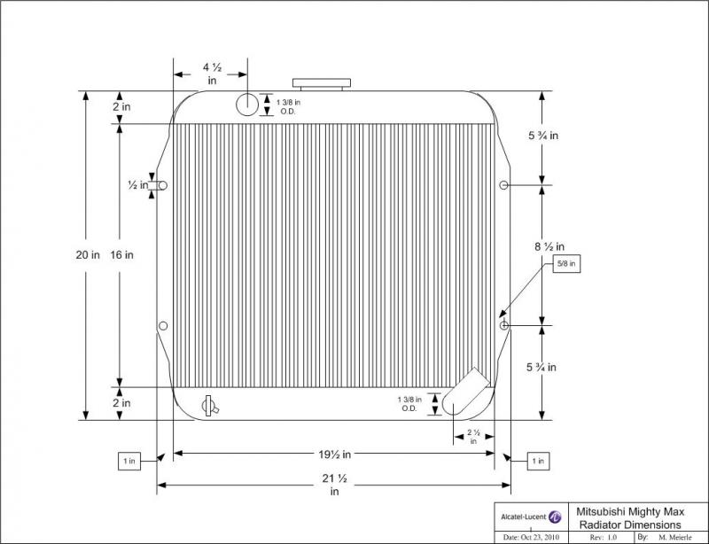
So I am finally able to start buying parts for the MM. HOORAY!!!! And I knew I was on borrowed time with the radiator. Well times up and the reaper came and claimed it in this wonderful heat. But motor is fine.
Anywho my question is: Is there a larger radiator that can be put in rather than the factory one? I didn't know if i can use a 1G DSM radiator, or how good they are. Or if I can borrow one from another car.
It does have the mech. fan and shroud. So if I change the radiator I am guessing I'll have to change them too??
Any help is appreciated.



Reply With Quote





Bookmarks